DUMBO Loft

Brooklyn, New York
2020
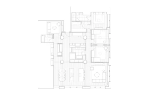
The building is a former cardboard factory recently converted into condominiums. The project centered around combining and reenvisioning two apartments. The existing apartments contained windowless corridors and odd programmatic relationships. Our design work focused on reorganizing the mechanical and sprinkler services. Ducts were relocated under the existing raised floor, allowing soffits to be removed and the concrete ceiling to be exposed. The plan revolves around four newly exposed columns, between which a central volume containing storage and a bathroom were placed. This volume separates the living from the bedroom spaces and is partial height which allows natural light to reach the rear of the loft. At the entry, an oversized peg board allows for the malleability in the placement of wood hooks. A ladder leading to a small loft references one made by the client’s father and allows for access to a small, elevated loft.










Glass transoms were created to soften the distinction between living and sleeping spaces. Light glows through the glass planes, animated with occupancy. The choice of wired glass was inspired by the building’s original industrial purpose.











